สรุปผลกรประมาณราคาค่าก่อสร้างเรือนพยาบาล

0 1,498

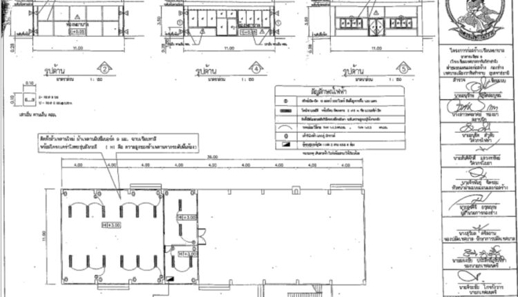
โรงเรียนเทศบาลวารินวิชาชาติ  สังกัดกองการศึกษา  เทศบาลเมืองวารินชำราบ  จังหวัดอุบลราชธานี   ได้จัดทำโครงการก่อสร้างเรือนพยาบาล ที่อาคาร 9 สายชั้นประถมศึกษาปีที่ 3  เป็นเรือนพยาบาลแห่งที่ 2 ของโรงเรียน  เพื่อให้บริการนักเรียนและบุคลากรภายในโรงเรียน  ได้สรุปผลการประมาณราคาค่าก่อสร้าง

ดาวน์โหลดรายละเอียดสรุปผลการประเมินราคาค่าก่อสร้างและแบบก่อสร้างimg08319